5 min read
When Interactive Floorplans Lead to Homebuying Confidence
Madison Frye
:
Jan 23, 2026 4:58:29 PM
Buying a home is about more than choosing a design that looks good on a screen. As decisions become more serious, buyers want to understand how a space will function in their everyday lives. New interactive homebuying tools, such as the Interactive Floorplan tool from Fischer Homes are giving people the tools they need to move from browsing floorplans to feeling confident in their new home purchase.
Content written by Madison Frye, Digital Marketing Strategist at Fischer Homes
When Curiosity Becomes More Intentional
There is a point in the homebuying process when curiosity turns into something more. What starts as broad exploration slowly becomes more intentional, shaped by questions that are less about appearance and more about function. People begin thinking about how a space will support their lives, not just how it looks on a screen.
Floorplans have always played an important role in that transition. They show how a home is organized and how much space is available, offering a clear starting point for comparison. However, even a well-designed home layout can feel difficult to commit to when so much is left to interpretation.
That gap is where interactive homebuying tools become so meaningful. The Interactive Floorplan tool from Fischer Homes was created to help make layouts easier to understand by putting them into context. Instead of asking people to imagine how a home might function, it allows them to explore the space visually and develop a clearer sense of how it could work in real life.
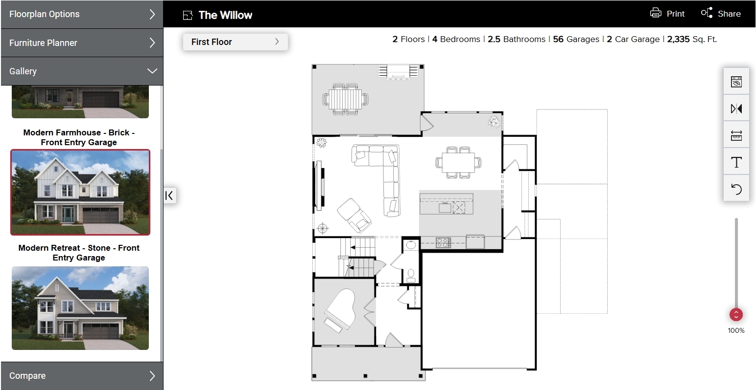
Where to Find the Interactive Floorplan Tool
As people move through the Fischer Homes website, exploration begins with choosing a region, which narrows the focus to communities in a specific area. From there, visitors arrive on a page titled “New Home Communities in [City, State],” where more local available home options are shown. Beneath the page title are navigation buttons, including one labeled “Floorplans.” Selecting it opens a collection of home designs available in that region.
From here, you can select a floorplan you are interested in. Once selected, the page loads with photos, details, and a virtual tour. Scrolling past the virtual tour brings the Interactive Floorplan into view. By the time it appears, the experience has already shifted. The focus is no longer on browsing possibilities, but on evaluating whether a particular home truly fits.
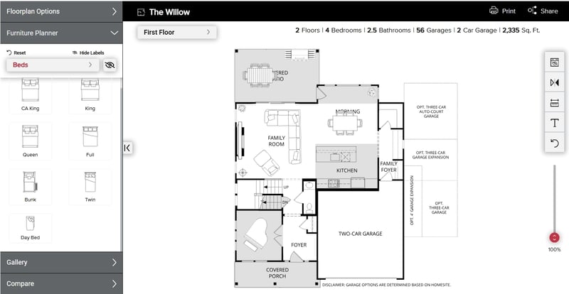
Turning Abstract Layouts into Relatable Spaces
What makes the Interactive Floorplan especially effective is how it helps space feel more relatable. The ability to add furniture directly into the layout gives immediate context to each room. Seeing beds, seating, and tables placed within the floorplan makes the size of the home and space easier to understand and removes much of the guesswork. Additionally, on the right side of the Interactive Floorplan tool are more toggles, such a “Flip Floorplan”, “Measure”, “Text”, and “Reset” buttons. With this interactive new home building tool, rooms stop feeling abstract and begin to feel usable. This kind of clarity is difficult to achieve through measurements alone, but it becomes intuitive through new home visualization tools.
For two-story homes, the Interactive Floorplan offers another layer of understanding. Being able to toggle or switch between floors helps reveal how private and shared spaces relate to one another. It shows how bedrooms are positioned in relation to living areas and how features like laundry rooms and bathrooms fit into daily routines.
The experience also extends beyond the interior. Each Interactive Floorplan includes an exterior gallery tied to that specific design. These images show how the same layout can take on different architectural styles, offering a clearer picture of how form and function come together. The exterior views reinforce the idea that a floorplan is a foundation, not a final expression. They allow people to imagine how the home will feel from the curb as well as from within.
Helping People Compare and Decide on their New Home Floorplan
As choices begin to narrow, comparison naturally becomes part of the process. The Interactive Floorplan includes a compare feature that allows multiple layouts to be viewed side by side. Seeing options together makes differences easier to identify, whether those differences involve room placement, overall flow, or how space is distributed. Instead of moving back and forth between pages, everything is visible at once, supporting calmer and more thoughtful decision-making.
The Interactive Floorplan does not exist on its own. It is part of a broader set of tools Fischer Homes has developed to support people at different stages of their journey, recognizing that decisions unfold over time rather than all at once.
Earlier in the decision process of selecting a floorplan, many people encounter tools like
Fall for the Floorplan, which introduces layouts in a more engaging and approachable way. At that stage, the goal is discovery. People are learning what types of spaces they’re drawn to and which layouts feel right, often before they’re ready to focus on a specific community or home design.
As interest becomes more focused, the Interactive Floorplan helps turn that early curiosity into deeper understanding. This is where layouts are explored in detail and space begins to feel more tangible. Instead of rushing decisions, the experience encourages people to slow down and evaluate how a home might support their lifestyle.
Later in the journey, the Design Visualizer builds on that foundation by shifting attention from layout to personalization. Once a floorplan feels right, people can begin exploring finishes, colors, and materials. Seeing design choices applied within a home they already understand helps those decisions feel more connected and less overwhelming.
Building Confidence Through Understanding
Together, these tools reflect a thoughtful approach to homebuying. Rather than expecting people to make major decisions all at once, Fischer Homes offers experiences that align with how choices naturally develop.
This layered approach respects the reality that choosing a home is rarely a straight line. People revisit options, refine preferences, and take time to feel confident in their direction. Having tools that support each stage helps the process feel more manageable and far less intimidating.
The Interactive Floorplan is not meant to replace visiting a model home, speaking with a sales professional, or other stages in the home decision process. Instead, it helps people arrive at those moments better prepared. With a clearer sense of what matters most to them, conversations become more focused and productive. Questions are easier to articulate, and decisions feel more grounded.
At its core, the Interactive Floorplan supports confidence through understanding. It gives people the space to explore and reflect before making a major decision. By making layouts easier to visualize and compare, it helps turn uncertainty into clarity.
As expectations around the homebuying experience continue to evolve, tools like this will play an increasingly important role. The Interactive Floorplan reflects a shift toward a more open, thoughtful approach, one that recognizes how significant the decision truly is. When people can clearly see how a home fits into their lives, choosing it feels less intimidating and more like a natural next step forward.
Check out the Interactive Floorplan on the Paxton in:
- Atlanta, GA
- Cincinnati, OH and Northern Kentucky
- Columbus, Ohio
- Dayton, Ohio
- Indianapolis, Indiana
- Louisville, Kentucky
- Louis, Missouri
Check out the Interactive Floorplan on the Margot in:
Check out the Interactive Floorplan on the Charles in:
- Atlanta, GA
- Cincinnati, OH and Northern Kentucky
- Columbus, Ohio
- Dayton, Ohio
- Indianapolis, Indiana
- Louisville, Kentucky
- Northwest Florida
- Louis, Missouri
Check out the Interactive Floorplan on the Leland in:
- Atlanta, GA
- Cincinnati, OH and Northern Kentucky
- Columbus, Ohio
- Dayton, Ohio
- Indianapolis, Indiana
- Louisville, Kentucky
- Louis, Missouri
Looking for additional resources, no matter the stage you're in of your homebuying journey?
Check out the Interactive Homebuyer & Homebuilder Checklist. The perfect tool to help prepare you for your home buying process. Or you can read the full article, here.
Download the Homebuyer Checklist
Request a Tour
Go Beyond
Beyond The Build shares the latest events, Fischer Homes news, and lifestyle tips you'll love.
View this profile on InstagramFischer Homes (@fischerhomes) • Instagram photos and videos
View Categories
- Events (107)
- Lifestyle (60)
- Louisville (55)
- Cincinnati (50)
- Home Design (47)
- Northern Kentucky (35)
- Indianapolis (33)
- Dayton (30)
- St. Louis (27)
- Atlanta (26)
- Cincinnati Bengals (25)
- Columbus (19)
- News (19)
- Homeowners (13)
- Northwest Florida (11)
- St. Jude (7)
- New Home Finance (5)
- Raleigh (5)
- T.O.B Design Firm x Fischer Homes (4)
- Education (1)
3 min read
New Arrivals: 3 Modern Designer Floorplans
Exciting news! We are delighted to introduce three new Designer Collection floorplans - the Ivy, the Linden, and the Olive. These meticulously...


.jpg?width=400&height=256&name=Paxton%20English%20Elegance%20(2).jpg)


